eCO

Rare New Resale Unit (SOLD)

2 bed 2 bath

915 sqft | $1,584.70 psf

Tanah Merah MRT - 400m

99-Year

About this Listing

This is a BRAND NEW RESALE UNIT not to be missed!

  • Rare Spacious, Comfortably-sized 2-bedder
  • Very Functional! - comes with enclosed kitchen, utility, yard, and naturally-ventilated bathrooms
  • Premium stack with unblocked views
  • Breezy north-south orientated unit
  • Wide frontage at the living/dining room makes the unit feel larger than a typical 2-bedder!

 

Location
277 Bedok South Aveue 3, Singapore 465457
Bedok, Upper East Coast, Siglap (D16)

Viewings and Enquiries

For viewing and enquiries, call our listing agent at

+65-9728-2278

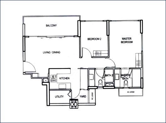
Floor Plan

926 sqf: 3 Bedroom | 2 Bathroom | Balcony

* Sizes and areas stated are subject to actual measurement.

Virtual Tour

About this Development

eCO condo, crafted by award-winning DP Architects with famed eco-architect Dr Ken Yeang, is a beautiful 'green' condominium within a short walk of Tanah Merah MRT interchange station.

The theme behind this development is to be "in harmony with nature". eCo is conceptualized to be a ‘community in a garden’ with lush leisure spaces, flower terraces, boulevard walk, eco-pond & herb garden inspired by rich topical landscapes. It also incorporates passive greening with vertical eco-gardens or green walls,  eco-friendly materials and facilities.

 

PROJECT NAME
eCO
TENURE
99-Year Leasehold
TYPE
Condominium For Sale
DEVELOPER
Eco Properties Pte. Ltd.
TOTAL UNITS
748
TOP
2017

Surrounding Amenities

Transport

Trains (MRT & LRT)

  • Tanah Merah MRT (EW4) - 0.4 km - 5 min walk
  • Bedok South MRT (TE30) Thomson-East Coast Line Due 2024 - 0.86 km
  • Bayshore MRT (TE29) Thomson-East Coast Line Due 2023 - 1.21 km
  • Sungei Bedok MRT (DT37 TE31) Downtown Line Due 2024 - 1.38 km
  • Bedok MRT (EW5) - 1.66 km

Expressways

  • Pan-Island Expressway - 3.8 km |  7 min drive
  • East Coast Parkway - 3.19 km | 5 min drive

Bus Stops

  • Opp Blk 49 (Bus: 506, 12, 38, 46, 47, 48) - 0.1km
  • Blk 50 (Bus: 38, 46, 47, 48, 12, 506) - 0.11 km

Schools

Primary Schools

  • Temasek Primary School - 0.62 km | 5 min walk
  • Bedok Green Primary School - 0.8 km | 10 min walk
  • St. Anthony's Canossian Primary School - 1.34 km | 4 min drive
  • Red Swastika School - 1.63 km
  • Fengshan Primary School - 1.65 km
  • Yu Neng Primary School - 1.86 km

Secondary Schools

  • Bedok View Secondary School - 0.17km
  • Bedok South Secondary School - 0.69km
  • Temasek Secondary School - 0.87km
  • Anglican High School - 0.87km
  • Temasek Junior College - 1.18km
  • St. Anthony's Canossian Secondary School - 1.31km
  • Bedok Green Secondary School - 1.68km

Integrated Schools

  • Temasek Junior College - 1.18 km

International Schools

  • One World International School - 3.4 km | 5 min drive
  • United World College - East Campus - 6.0 km | 10 min drive

Amenities

Shopping Malls

  • Bedok Shopping Complex - 0.94 km |
  • East Village - 0.96 km |
  • Bedok Point - 1.42 km | 4 min drive
  • Bedok Mall - 1.76 km |
  • Siglap Shopping Centre - 3.0 km | 5 min drive

Groceries & Supermarts

  • NTUC Fairprice (New Upper Changi) - 0.4 km 
  • Giant (Bedok Market Place Complex) - 0.97 km 
  • Cold Storage Eastwood - 1.17 km 
  • Giant (Bedok North Road) - 1.28 km 
  • NTUC Fairprice (Bedok North Blk 89 - 1.32 km 
Disclaimer

BuysingSingapore.sg takes due measures to ensure that all the information provided are as reliable as possible but will not be responsible for any wrong or inaccurate information that has been featured herein. BuysingSingapore.sg does not make any representation, endorsement, warranty or guarantee the completeness or accuracy of the information and materials provided. 

Viewings and Enquiries

For viewing and enquiries, call our listing agent at

+65-9728-2278